range of activity
performance
references
portrait
contact
download
directions
legal notices
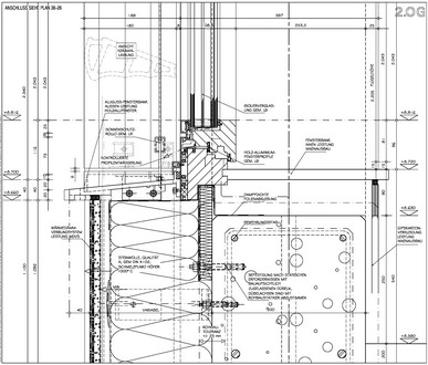
Bremer Landesbank, Bremen Main detail Vertical section polygonal inner court facade, parapet connection
Bremer Landesbank,
Bremen
Main detail
Vertical section polygonal inner court facade, parapet connection
back next
back
startseite